Lakások
A társasházak alaprajzai
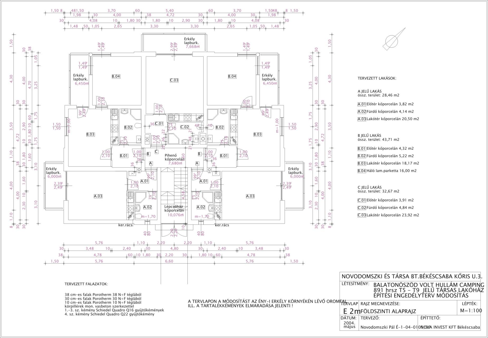
Földszinti alaprajzEmeleti alaprajz
Tetőtéri alaprajz
Bemutató látványtervek
A T5 jelű társasház lakásbemutatójaA T6 jelű társasház lakásbemutatója
Hullám Üdülőpark 16 hektáros, őrzött, saját stranddal rendelkező területén a beruházás végére 60 lakás, 160 apartman, valamint 50 üdülővilla épült fel.
Az értékesítés feltételeikről érdeklődjön munkatársunknál!
Hudák Emese
+36 70 610 1092
www.ingatlanabalatonon.hu
 
 
Eladó lakások
A társasházak 3 szintből állnak: földszint, első emelet, tetőtér. A lakások nagy fedett teraszokkal, erkélyekkel rendelkeznek. Vételáruk tartalmaz lakásonként egy gépkocsibeállót. Alapterületek: 31 m2-52 m2.
Műszaki tartalom
Kulcsrakész műszaki tartalomAlaprajzok
Fényképek


